Objektart
Adresse
Objektdaten
Informationen
Ausstattung
Details
Bei dem angebotenen Objekt handelt es sich um eine großzügige Lager- und Produktionsfläche mit vielseitigen Nutzungsmöglichkeiten. Die flexible Grundstruktur ermöglicht eine individuelle Anpassung an unterschiedliche betriebliche Anforderungen und bietet optimale Voraussetzungen für effiziente Arbeits- und Logistikprozesse.
Die Fläche eignet sich hervorragend für:
Logistik- und Distributionslager
Onlineversandhandel und E-Commerce
Produktionsbetriebe sowie vergleichbare Gewerbe
Dank der großzügigen Dimensionierung und der funktionalen Gestaltung ist das Objekt ideal für Unternehmen, die Wert auf praktikable Abläufe, gute Erreichbarkeit und ausreichend Platzreserven legen.
Die Lager- und Produktionsfläche verfügt über ein elektrisches Rolltor im Eingangsbereich, das eine komfortable Andienung sowie reibungslose Be- und Entladevorgänge ermöglicht.
Zusätzlich steht ein integrierter Empfangsbereich bzw. ein kleines Büro zur Verfügung, das sich ideal für administrative Tätigkeiten oder Kundenempfang eignet. Bei Bedarf kann dieser Bereich nach Vereinbarung zurückgebaut werden, um zusätzliche Lagerfläche zu schaffen und die Nutzfläche weiter zu optimieren.
Die Lagerhalle in Dortmund-Hörde (Am Heedbrink 74) überzeugt durch ihre hervorragende Verkehrsanbindung im Herzen des Ruhrgebiets. Die Autobahnen A1 und A45 sind in wenigen Minuten erreichbar und ermöglichen schnelle Verbindungen in alle Richtungen. Der Bahnhof Dortmund-Hörde sorgt für eine gute ÖPNV-Anbindung, der Dortmund Airport ergänzt die Infrastruktur für nationale und internationale Verbindungen.
Das wirtschaftlich dynamische Umfeld mit moderner Gewerbe- und Dienstleistungsstruktur sowie die positive Entwicklung des Stadtteils machen den Standort besonders attraktiv für Logistik und Handel.
Haben wir Ihr Interesse geweckt - Ihnen gefällt das Objekt?
Zögern Sie nicht und melden Sie sich bei uns - sehr gerne stehen wir bei Fragen und Wünschen, sowie für weitere Informationen rund um das Angebot zur Verfügung.
Für ein ausführliches Exposé melden Sie sich bitte per E-Mail bei mir.
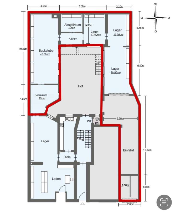
Die in diesem Exposé gemachten Angaben beruhen auf Auskünften des Eigentümers oder vorgelegten Plänen und Berechnungen. Wir übernehmen daher keine Haftung, insbesondere für Flächenangaben, Grundrisse oder Lageskizzen.
Die Erstellung eines Energieausweises wurde beauftragt und dieses Exposé wird umgehend nach Fertigstellung des Energieausweises überarbeitet. Der Ausweis wird Ihnen spätestens bei einer Besichtigung übergeben.
Sie haben Fragen oder wünschen einen Besichtigungstermin?
Ihre Ansprechpartnerin:
Kim Lukaschewski
Tel: +49 (0)231 - 398 19 70
E-Mail: k.Lukaschewski@immoweb.de
Ansprechpartner
Telefax: 0231 / 398 19 79
k.Lukaschewski@immoweb.de
Ich bin damit einverstanden, dass mir Karten von Google angezeigt werden. Es gelten die Datenschutzbedingungen von Google (https://policies.google.com/privacy).
Ich bin einverstanden